About
design
work
Contact
Location.
경기도 고양시 일산동구 무궁화로 37, 302호
070.7585.1008
space
object
direction
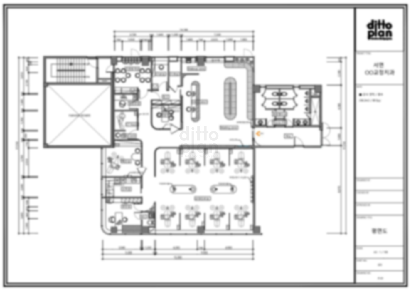
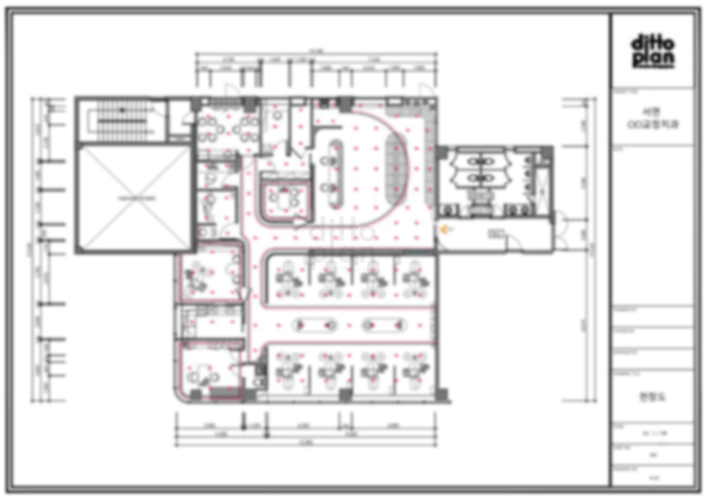
부산OO치과의원
페이지 정보
작성자
최고관리자
조회수
14회
등록일
26-03-23 13:57
답변
본문
목록
첨부파일
부산OO치과의원
AREA :
DESIGN : (주)디토플랜
CONSTRUCTION : 의료기관
견적문의